


Casa in vendita - Via Pietro Ercole Visconti, Roma (rif. 79/2024)
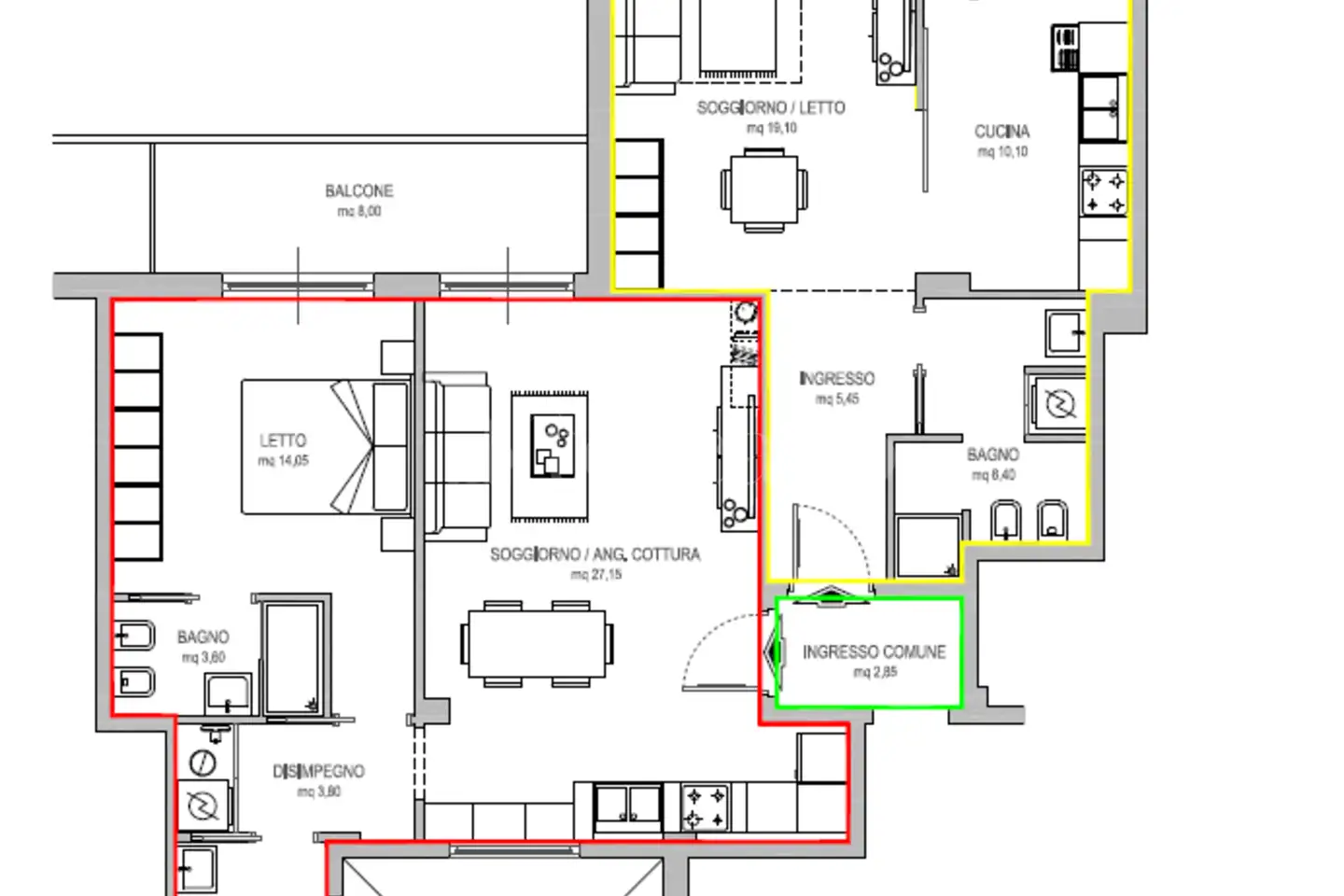
Ampia metratura divisibile in due bilocali con servizi e balconi come da planimetria. 115 mq più spazi esterni centrale e vicinanze mare in zona ben servita più precisamente in via visconti angolo corso duca di Genova .L'immobile in oggetto è situato al iv piano di palazzina in cortina ed è attualmente composto da ampio ingresso, salone, 2 camere, cucina abitabile, bagno, ripostiglio 1 terrazzo di 10 m ed un balcone di 6 mq .l appartamento necessita di ristrutturazione interna con possibilità di grandi miglioramenti visti i grandi spazi interni.. possibiltàdi divisione in due unità abitative
Le informazioni pubblicitarie non hanno carattere contrattuale. Le planimetrie e i render non sono in scala e la suddivisione degli spazi è a scopo meramente illustrativo
Descrizione
Ampia metratura divisibile in due bilocali con servizi e balconi come da planimetria. 115 mq più spazi esterni centrale e vicinanze mare in zona ben servita più precisamente in via visconti angolo corso duca di Genova .L'immobile in oggetto è situato al iv piano di palazzina in cortina ed è attualmente composto da ampio ingresso, salone, 2 camere, cucina abitabile, bagno, ripostiglio 1 terrazzo di 10 m ed un balcone di 6 mq .l appartamento necessita di ristrutturazione interna con possibilità di grandi miglioramenti visti i grandi spazi interni.. possibiltàdi divisione in due unità abitative
Le informazioni pubblicitarie non hanno carattere contrattuale. Le planimetrie e i render non sono in scala e la suddivisione degli spazi è a scopo meramente illustrativo
Caratteristiche
1 livello
Piano 4: ingresso, salone, 2 camere, cucina abitabile, servizio, balcone 6 mq, terrazzo 10 mq
Composizione
1 livello
Piano 4: ingresso, salone, 2 camere, cucina abitabile, servizio, balcone 6 mq, terrazzo 10 mq
Posizione
Altre proposte in zona
Tutto quello che Toscano ti offre



































































































































































































































































































