


Casa in vendita - Via Flaminia, Roma (rif. 41/2025)
In palazzo d’epoca, su Via Flaminia, storica via romana incastonata tra il centro storico e gli affascinanti quartieri Flaminio e Parioli, famosi per i loro viali alberati, per le vie dello shopping e per l’architettura Rococò di inestimabile bellezza. A pochi passi da Piazza del Popolo, una delle piazze più affascinanti della città, famosa per i suoi caffè , accanto a Piazza di Spagna e Villa Borghese. Ottimamante collegato con il centro storico della città e le sue attrazioni più conosciute.
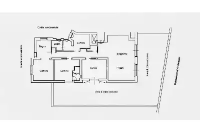
Le informazioni pubblicitarie non hanno carattere contrattuale. Le planimetrie e i render non sono in scala e la suddivisione degli spazi è a scopo meramente illustrativo
Descrizione
In palazzo d’epoca, su Via Flaminia, storica via romana incastonata tra il centro storico e gli affascinanti quartieri Flaminio e Parioli, famosi per i loro viali alberati, per le vie dello shopping e per l’architettura Rococò di inestimabile bellezza. A pochi passi da Piazza del Popolo, una delle piazze più affascinanti della città, famosa per i suoi caffè , accanto a Piazza di Spagna e Villa Borghese. Ottimamante collegato con il centro storico della città e le sue attrazioni più conosciute.
Le informazioni pubblicitarie non hanno carattere contrattuale. Le planimetrie e i render non sono in scala e la suddivisione degli spazi è a scopo meramente illustrativo
Caratteristiche
1 livello
Piano 3: ingresso, soggiorno con cucina a vista, 4 camere, cucina a vista, 4 servizi, ripostiglio, balcone 5 mq
Composizione
1 livello
Piano 3: ingresso, soggiorno con cucina a vista, 4 camere, cucina a vista, 4 servizi, ripostiglio, balcone 5 mq
Posizione
Altre proposte in zona
Tutto quello che Toscano ti offre

















