Libero | 1 Livello

Negozio in affitto - Via Ugo Ojetti, Roma (rif. 11/2026)

86 m²
2 Locali
1 Bagni
Piano Terra
Prezzo immobile
Riservato
Descrizione
Talenti VIA UGO OJETTI rara opportunità locale C1 su un unico livello

In posizione commerciale primaria, sulla strada principale del quartiere ad elevato passaggio pedonale e veicolare, proponiamo in locazione locale commerciale categoria C/1.
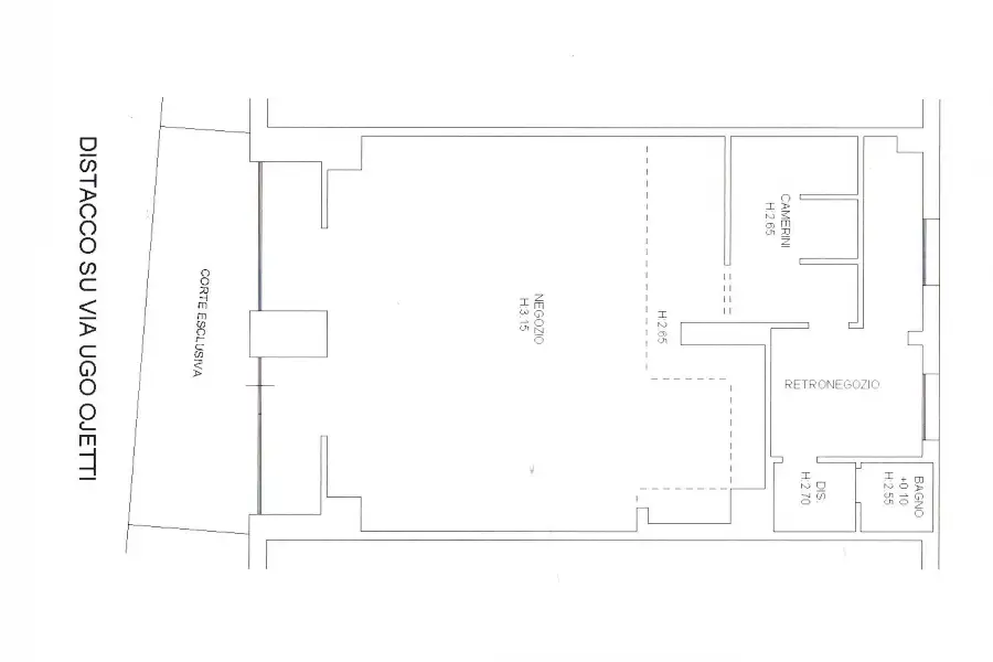
L’immobile si sviluppa su un unico livello di circa 86 mq, con pianta regolare facilmente modulabile e adatta a molteplici attività.
Composizione:
ampio open space fronte strada
bagno
antibagno
ripostiglio ad uso magazzino
due ampie vetrine su strada che garantiscono eccellente luminosità ed elevata esposizione pubblicitaria

La posizione, altamente strategica e di forte richiamo commerciale, rende il locale ideale per negozi al dettaglio, showroom, studi professionali, servizi alla persona,  franchising e attività food senza canna fumaria.

Ottima visibilità, forte passaggio e massima riconoscibilità.

Richiesta FIDEJUSSIONE BANCARIA SEMESTRALE e due mensilità di deposito.

CONTATTACI PER UN APPUNTAMENTO.

Le informazioni pubblicitarie non hanno carattere contrattuale. Le planimetrie e i render non sono in scala e la suddivisione degli spazi è a scopo meramente illustrativo

Descrizione

Talenti VIA UGO OJETTI rara opportunità locale C1 su un unico livello

In posizione commerciale primaria, sulla strada principale del quartiere ad elevato passaggio pedonale e veicolare, proponiamo in locazione locale commerciale categoria C/1.
L’immobile si sviluppa su un unico livello di circa 86 mq, con pianta regolare facilmente modulabile e adatta a molteplici attività.
Composizione:
ampio open space fronte strada
bagno
antibagno
ripostiglio ad uso magazzino
due ampie vetrine su strada che garantiscono eccellente luminosità ed elevata esposizione pubblicitaria

La posizione, altamente strategica e di forte richiamo commerciale, rende il locale ideale per negozi al dettaglio, showroom, studi professionali, servizi alla persona,  franchising e attività food senza canna fumaria.

Ottima visibilità, forte passaggio e massima riconoscibilità.

Richiesta FIDEJUSSIONE BANCARIA SEMESTRALE e due mensilità di deposito.

CONTATTACI PER UN APPUNTAMENTO.

Le informazioni pubblicitarie non hanno carattere contrattuale. Le planimetrie e i render non sono in scala e la suddivisione degli spazi è a scopo meramente illustrativo


Caratteristiche
Superficie
86m²
Locali
2
Bagni
1
Piano
Terra
Riscaldamento
Centralizzato
Classe energetica
F 156 Kwh/mq anno
Posto auto / Box
No
Tipo costruzione
Signorile di 5 piani
Stato immobile
Libero
Condizioni immobile
Ottimo / Ristrutturato

Caratteristiche

Superficie
86m²
Locali
2
Bagni
1
Piano
Terra
Riscaldamento
Centralizzato
Classe energetica
F 156 Kwh/mq anno
Posto auto / Box
No
Tipo costruzione
Signorile di 5 piani
Stato immobile
Libero
Condizioni immobile
Ottimo / Ristrutturato

Composizione

1 livello

Piano Terra: ingresso, servizio, 2 vetrine

Composizione

1 livello

Piano Terra: ingresso, servizio, 2 vetrine


Posizione
Il quartiere Talenti - Monte Sacro
Dati demografici non disponibili

Posizione

Il quartiere Talenti - Monte Sacro
Dati demografici non disponibili

Agenzia
Agenzia Talenti Ojetti
Via Ugo Ojetti 91/93, Roma, Roma
Vai all'agenzia
Incontra i nostri esperti

Analisi di mercato
Tipologia immobili nella zona
Caricamento dati...
Andamento prezzi nella zona (dati OMI)
Caricamento dati...
Nota: I valori OMI (Osservatorio del Mercato Immobiliare) rappresentano stime statistiche di mercato riferite a tipologie abitative standard. Per una valutazione precisa del tuo immobile, i consulenti Toscano sono a tua disposizione
Incontra i nostri esperti
Contattaci o prenota una visita con un nostro agente

Vendita e acquisto della tua casa, un unico percorso

Affidati a noi: gestiamo vendita e acquisto con trasparenza e serenità

I nostri servizi

Tutto quello che Toscano ti offre

Ristruttura Realizziamo progetti su misura per il tuo nuovo immobile
Progetta la tua casa
Assicura Rendi più sicure le locazioni e le compravendite immobiliari con i nostri prodotti
Richiedi preventivo
Finanzia Ti supportiamo con una consulenza personalizzata nella tua richiesta di mutuo
Richiedi mutuo