


Villa in vendita - Via Sant'Anna, Olbia (rif. 1/2023)
Immobile su 2 livelli, cosi composto:
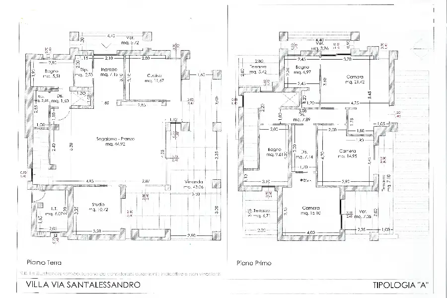
Piano terra: Grande soggiorno di 45 mq , cucina abitabile, studio/camera, 1 ampio bagno di servizio , 2 ripostigli, locale tecnico, grande veranda di 43 mq , giardino di 250 mq.
Piano primo: 1 camera padronale con bagno e cabina armadio con uscita con veranda privata, altri 2 camere da letto che condividono un altra veranda, 1 ampio bagno .
Immobile si inizia costruire su richiesta del cliente, per tanto si possono personalizzare i spazi e le finiture a vostro gusto e piacimento. Ottimo Rapporto Qualità/Prezzo.
Le informazioni pubblicitarie non hanno carattere contrattuale. Le planimetrie e i render non sono in scala e la suddivisione degli spazi è a scopo meramente illustrativo
Descrizione
Immobile su 2 livelli, cosi composto:
Piano terra: Grande soggiorno di 45 mq , cucina abitabile, studio/camera, 1 ampio bagno di servizio , 2 ripostigli, locale tecnico, grande veranda di 43 mq , giardino di 250 mq.
Piano primo: 1 camera padronale con bagno e cabina armadio con uscita con veranda privata, altri 2 camere da letto che condividono un altra veranda, 1 ampio bagno .
Immobile si inizia costruire su richiesta del cliente, per tanto si possono personalizzare i spazi e le finiture a vostro gusto e piacimento. Ottimo Rapporto Qualità/Prezzo.
Le informazioni pubblicitarie non hanno carattere contrattuale. Le planimetrie e i render non sono in scala e la suddivisione degli spazi è a scopo meramente illustrativo
Caratteristiche
1 livello
Piano Terra: ingresso, soggiorno, camera, cucina, servizio, 2 ripostigli, 4 terrazzi 50 mq, giardino 255 mq
2 livello
Piano 1: 3 camere, 2 servizi, ripostiglio, 5 terrazzi 31 mq
BOX/P.AUTO
2.p auto scoperto
Composizione
1 livello
Piano Terra: ingresso, soggiorno, camera, cucina, servizio, 2 ripostigli, 4 terrazzi 50 mq, giardino 255 mq
2 livello
Piano 1: 3 camere, 2 servizi, ripostiglio, 5 terrazzi 31 mq
BOX/P.AUTO
2.p auto scoperto
Posizione
Tutto quello che Toscano ti offre








