

Affittato
| 1 Livello
Negozio in vendita - via Santa Rita da Cascia, Milano (rif. 47/2025)
30 m²
1 Locali
1 Bagni
Piano Terra
Prezzo immobile
€ 95.000
Rata di € 335 al mese con Toscano Mutui
Descrizione
Negozio una luce LOCATO a € 6.000 + spese condominiali
Le informazioni pubblicitarie non hanno carattere contrattuale. Le planimetrie e i render non sono in scala e la suddivisione degli spazi è a scopo meramente illustrativo
Descrizione
Negozio una luce LOCATO a € 6.000 + spese condominiali
Le informazioni pubblicitarie non hanno carattere contrattuale. Le planimetrie e i render non sono in scala e la suddivisione degli spazi è a scopo meramente illustrativo
Caratteristiche
Superficie
30m²
Locali
1
Bagni
1
Piano
Terra
Ascensore
No
Riscaldamento
Autonomo
Classe energetica
E 952 Kwh/mq anno
Posto auto / Box
No
Tipo costruzione
Economica di 4 piani
Altro
Cantina
Stato immobile
Affittato
Condizioni immobile
Discrete
Caratteristiche
Superficie
30m²
Locali
1
Bagni
1
Piano
Terra
Ascensore
No
Riscaldamento
Autonomo
Classe energetica
E 952 Kwh/mq anno
Posto auto / Box
No
Tipo costruzione
Economica di 4 piani
Altro
Cantina
Stato immobile
Affittato
Condizioni immobile
Discrete
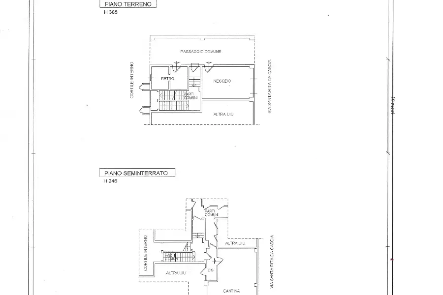
Composizione
1 livello
Piano Terra: 2 ingressi, locali, servizio, vetrina
Composizione
1 livello
Piano Terra: 2 ingressi, locali, servizio, vetrina
Posizione
Il quartiere Tre Castelli - Faenza
Caricamento dati...
Posizione
Il quartiere Tre Castelli - Faenza
Dati demografici non disponibili
Analisi di mercato
Tipologia immobili nella zona
Caricamento dati...
Andamento prezzi nella zona (dati OMI)
Caricamento dati...
Nota: I valori OMI (Osservatorio del Mercato Immobiliare) rappresentano stime statistiche di mercato riferite a tipologie abitative standard. Per una valutazione precisa del tuo immobile, i consulenti Toscano sono a tua disposizione
Famagosta, Barona
Altre proposte in zona
I nostri servizi
Tutto quello che Toscano ti offre

Ristruttura
Realizziamo progetti su misura per il tuo nuovo immobile
Progetta la tua casa
Assicura
Rendi più sicure le locazioni e le compravendite immobiliari con i nostri prodotti
Richiedi preventivo
Finanzia
Ti supportiamo con una consulenza personalizzata nella tua richiesta di mutuo
Richiedi mutuo






















