


Libero
Edificabile Residenziali in vendita - Via Bologna, Custonaci (rif. 68/2025)
200 m²
Prezzo immobile
€ 39.000
Rata di € 138 al mese con Toscano Mutui
Descrizione
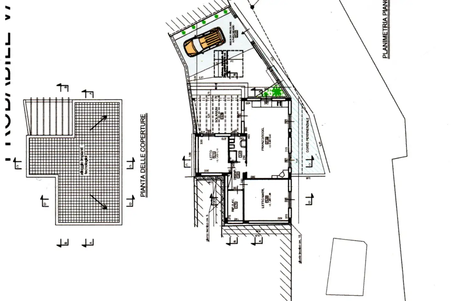
L’immobile è situato a Custonaci, in via Baglio Moglie belle, più precisamente in via Bologna. La zona è già urbanizzata e ben servita da infrastrutture essenziali quali strada asfaltata, fognatura, illuminazione pubblica, rete gas e acquedotto. Nelle vicinanze si trovano servizi primari come bar e supermercati, che garantiscono comodità quotidiana. Il terreno edificabile ha una superficie di 200 metri quadrati, oltre a una piccola corte. È possibile realizzare una costruzione di circa 100 metri quadrati su due livelli. Il progetto attuale prevede un edificio di circa 75 metri quadrati, oltre a un solarium di 13 metri quadrati e un posto auto scoperto. La location è a due passi da Cornino uno dei posti più belli di Trapani.
Le informazioni pubblicitarie non hanno carattere contrattuale. Le planimetrie e i render non sono in scala e la suddivisione degli spazi è a scopo meramente illustrativo
Descrizione
L’immobile è situato a Custonaci, in via Baglio Moglie belle, più precisamente in via Bologna. La zona è già urbanizzata e ben servita da infrastrutture essenziali quali strada asfaltata, fognatura, illuminazione pubblica, rete gas e acquedotto. Nelle vicinanze si trovano servizi primari come bar e supermercati, che garantiscono comodità quotidiana. Il terreno edificabile ha una superficie di 200 metri quadrati, oltre a una piccola corte. È possibile realizzare una costruzione di circa 100 metri quadrati su due livelli. Il progetto attuale prevede un edificio di circa 75 metri quadrati, oltre a un solarium di 13 metri quadrati e un posto auto scoperto. La location è a due passi da Cornino uno dei posti più belli di Trapani.
Le informazioni pubblicitarie non hanno carattere contrattuale. Le planimetrie e i render non sono in scala e la suddivisione degli spazi è a scopo meramente illustrativo
Composizione
1 livello
Composizione
1 livello
Posizione
Il comune Custonaci
Dati demografici non disponibili
Posizione
Il comune Custonaci
Dati demografici non disponibili
Agenzia
Agenzia Trapani Libica
Via Eraclea 3, angolo via Libica, Trapani
Incontra i nostri esperti
Analisi di mercato
Tipologia immobili nella zona
Caricamento
dati...
Andamento prezzi nella zona (dati OMI)
Caricamento
dati...
Nota: I valori OMI (Osservatorio del Mercato Immobiliare) rappresentano stime statistiche di mercato riferite a tipologie abitative standard. Per una valutazione precisa del tuo immobile, i consulenti Toscano sono a tua disposizione
I nostri servizi
Tutto quello che Toscano ti offre

Ristruttura
Realizziamo progetti su misura per il tuo nuovo immobile
Progetta la tua casa
Assicura
Rendi più sicure le locazioni e le compravendite immobiliari con i nostri prodotti
Richiedi preventivo
Finanzia
Ti supportiamo con una consulenza personalizzata nella tua richiesta di mutuo
Richiedi mutuo