


Libero
| 1 Livello
Casa in vendita - Piazza Ettore Majorana, Catania (rif. 8/2026)
39 m²
2 Locali
1 Bagni
Piano 1
Prezzo immobile
€ 89.000
Rata di € 314 al mese con Toscano Mutui
Descrizione
Nella centralissima Piazza Ettore Majorana meglio conosciuta come Piazza Umberto, proponiamo la vendita di un BIVANI posto al Primo Piano Non ascensorato di un Palazzo Signorile.
L' immobile sviluppa una superfice Catastale di 39 mq ed è cosi' composto:
Ingresso su un Soggiorno balconato con affaccio sul cortile interno a cui segue una camera da letto anch' essa balconata con affaccio sull' interno e dotata di condizionatore a Pompa di Calore.
Sempre dal soggiorno possiamo accedere ad un piccolo angolo cottura finestrato sul cortile e attrezzato con piletta a cui segue un servizio dotato di un box doccia e finestrato con stessa esposizione.
L' immobile si presenta in Buone condizioni con infissi in alluminio doppio vetro camera e oscuranti recentemente sostituiti, impianto idrico a collettore e pavimenti in gres.
La proprietà rappresenta un' Ottimale soluzione per investimento, ma si presta anche come abitazione per chi volesse vivere in centro a pochi passi da attività commerciali si ogni genere, dalle principali attrazioni della città e dai mezzi di trasporto pubblico.
L' immobile sviluppa una superfice Catastale di 39 mq ed è cosi' composto:
Ingresso su un Soggiorno balconato con affaccio sul cortile interno a cui segue una camera da letto anch' essa balconata con affaccio sull' interno e dotata di condizionatore a Pompa di Calore.
Sempre dal soggiorno possiamo accedere ad un piccolo angolo cottura finestrato sul cortile e attrezzato con piletta a cui segue un servizio dotato di un box doccia e finestrato con stessa esposizione.
L' immobile si presenta in Buone condizioni con infissi in alluminio doppio vetro camera e oscuranti recentemente sostituiti, impianto idrico a collettore e pavimenti in gres.
La proprietà rappresenta un' Ottimale soluzione per investimento, ma si presta anche come abitazione per chi volesse vivere in centro a pochi passi da attività commerciali si ogni genere, dalle principali attrazioni della città e dai mezzi di trasporto pubblico.
Le informazioni pubblicitarie non hanno carattere contrattuale. Le planimetrie e i render non sono in scala e la suddivisione degli spazi è a scopo meramente illustrativo
Descrizione
Nella centralissima Piazza Ettore Majorana meglio conosciuta come Piazza Umberto, proponiamo la vendita di un BIVANI posto al Primo Piano Non ascensorato di un Palazzo Signorile.
L' immobile sviluppa una superfice Catastale di 39 mq ed è cosi' composto:
Ingresso su un Soggiorno balconato con affaccio sul cortile interno a cui segue una camera da letto anch' essa balconata con affaccio sull' interno e dotata di condizionatore a Pompa di Calore.
Sempre dal soggiorno possiamo accedere ad un piccolo angolo cottura finestrato sul cortile e attrezzato con piletta a cui segue un servizio dotato di un box doccia e finestrato con stessa esposizione.
L' immobile si presenta in Buone condizioni con infissi in alluminio doppio vetro camera e oscuranti recentemente sostituiti, impianto idrico a collettore e pavimenti in gres.
La proprietà rappresenta un' Ottimale soluzione per investimento, ma si presta anche come abitazione per chi volesse vivere in centro a pochi passi da attività commerciali si ogni genere, dalle principali attrazioni della città e dai mezzi di trasporto pubblico.
L' immobile sviluppa una superfice Catastale di 39 mq ed è cosi' composto:
Ingresso su un Soggiorno balconato con affaccio sul cortile interno a cui segue una camera da letto anch' essa balconata con affaccio sull' interno e dotata di condizionatore a Pompa di Calore.
Sempre dal soggiorno possiamo accedere ad un piccolo angolo cottura finestrato sul cortile e attrezzato con piletta a cui segue un servizio dotato di un box doccia e finestrato con stessa esposizione.
L' immobile si presenta in Buone condizioni con infissi in alluminio doppio vetro camera e oscuranti recentemente sostituiti, impianto idrico a collettore e pavimenti in gres.
La proprietà rappresenta un' Ottimale soluzione per investimento, ma si presta anche come abitazione per chi volesse vivere in centro a pochi passi da attività commerciali si ogni genere, dalle principali attrazioni della città e dai mezzi di trasporto pubblico.
Le informazioni pubblicitarie non hanno carattere contrattuale. Le planimetrie e i render non sono in scala e la suddivisione degli spazi è a scopo meramente illustrativo
Caratteristiche
Superficie
39m²
Locali
2
Bagni
1
Piano
1
Riscaldamento
Centralizzato
Classe energetica
G 242 Kwh/mq anno
Posto auto / Box
No
Spazi esterni
5m²1 Balcone
Tipo costruzione
D'epoca di 3 piani
Stato immobile
Libero
Condizioni immobile
Buono / Abitabile
Caratteristiche
Superficie
39m²
Locali
2
Bagni
1
Piano
1
Riscaldamento
Centralizzato
Classe energetica
G 242 Kwh/mq anno
Posto auto / Box
No
Spazi esterni
5m²1 Balcone
Tipo costruzione
D'epoca di 3 piani
Stato immobile
Libero
Condizioni immobile
Buono / Abitabile
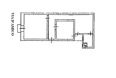
Composizione
1 livello
Piano 1: ingresso, soggiorno, camera, angolo cottura, servizio, balcone 5 mq
Composizione
1 livello
Piano 1: ingresso, soggiorno, camera, angolo cottura, servizio, balcone 5 mq
Posizione
Il quartiere Corso Sicilia - Fiera
Dati demografici non disponibili
Posizione
Il quartiere Corso Sicilia - Fiera
Dati demografici non disponibili
Analisi di mercato
Tipologia immobili nella zona
Caricamento
dati...
Andamento prezzi nella zona (dati OMI)
Caricamento
dati...
Nota: I valori OMI (Osservatorio del Mercato Immobiliare) rappresentano stime statistiche di mercato riferite a tipologie abitative standard. Per una valutazione precisa del tuo immobile, i consulenti Toscano sono a tua disposizione
Libertà, Stazione, Fiera
Altre proposte in zona
I nostri servizi
Tutto quello che Toscano ti offre

Ristruttura
Realizziamo progetti su misura per il tuo nuovo immobile
Progetta la tua casa
Assicura
Rendi più sicure le locazioni e le compravendite immobiliari con i nostri prodotti
Richiedi preventivo
Finanzia
Ti supportiamo con una consulenza personalizzata nella tua richiesta di mutuo
Richiedi mutuo














































































































































